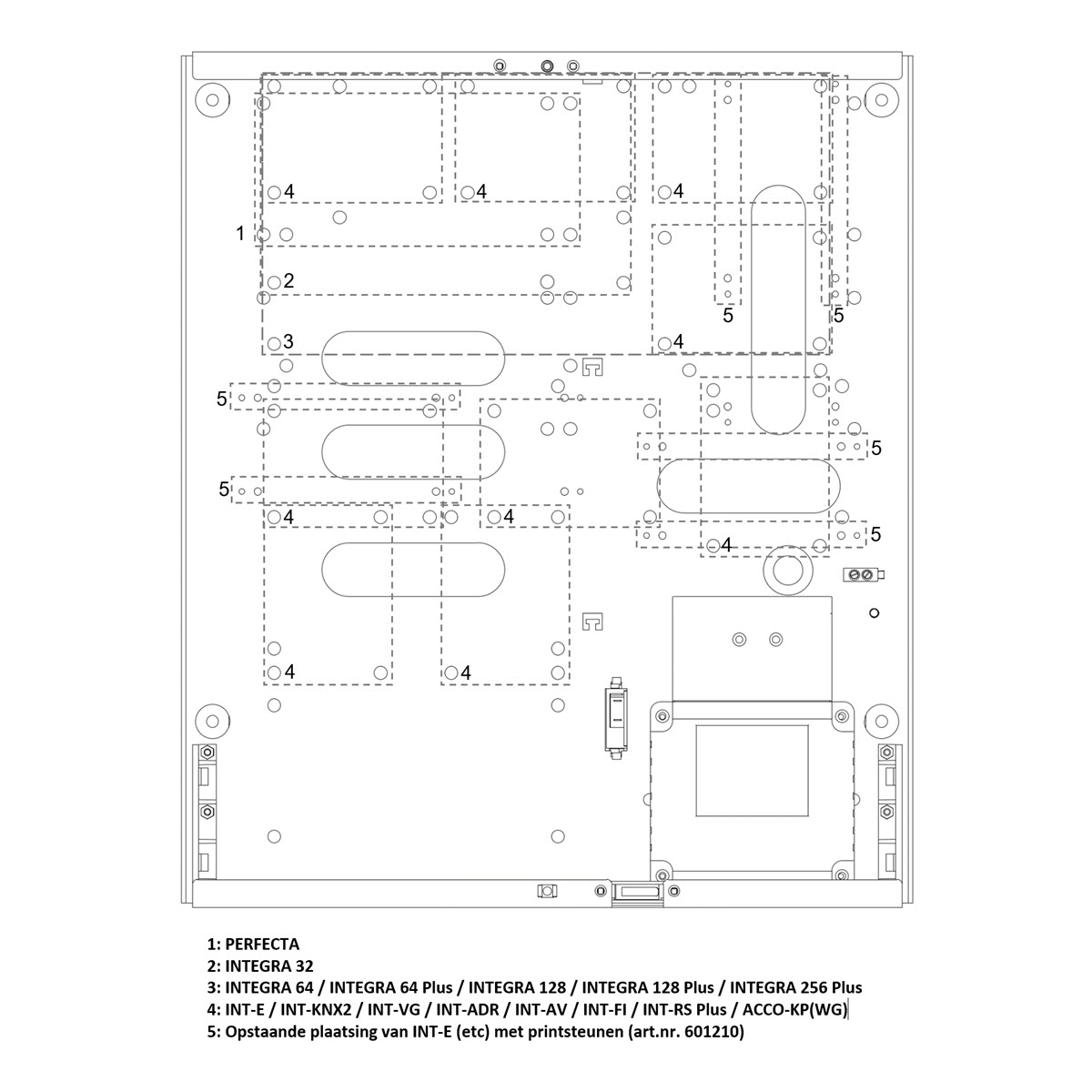
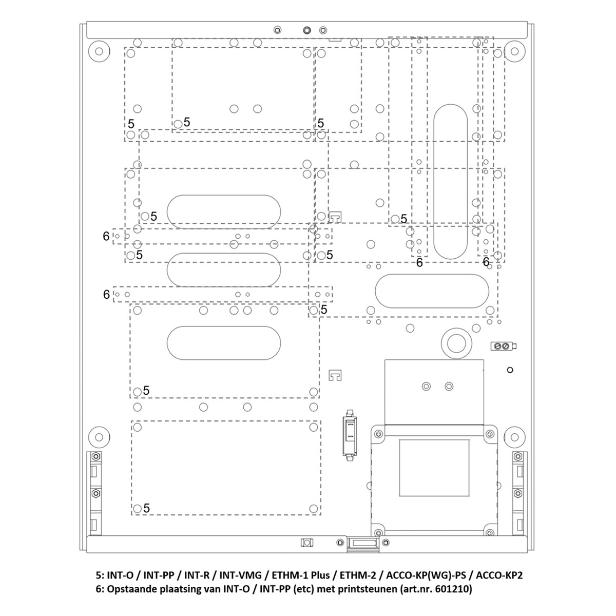
AWO260 -L- metalen behuizing met 50VA (20VAC/2,5A) transformator t.b.v. INTEGRA 64/128 of PERFECTA
AWO260 kast met trafo groot 2.5Amp
| Artikelnr: | 601300 |
| Eenheid: | 1 |
Raadpleeg voor alle details de Datasheet onder Documenten/Folders in de Download-tab.
- t.b.v. PERFECTA
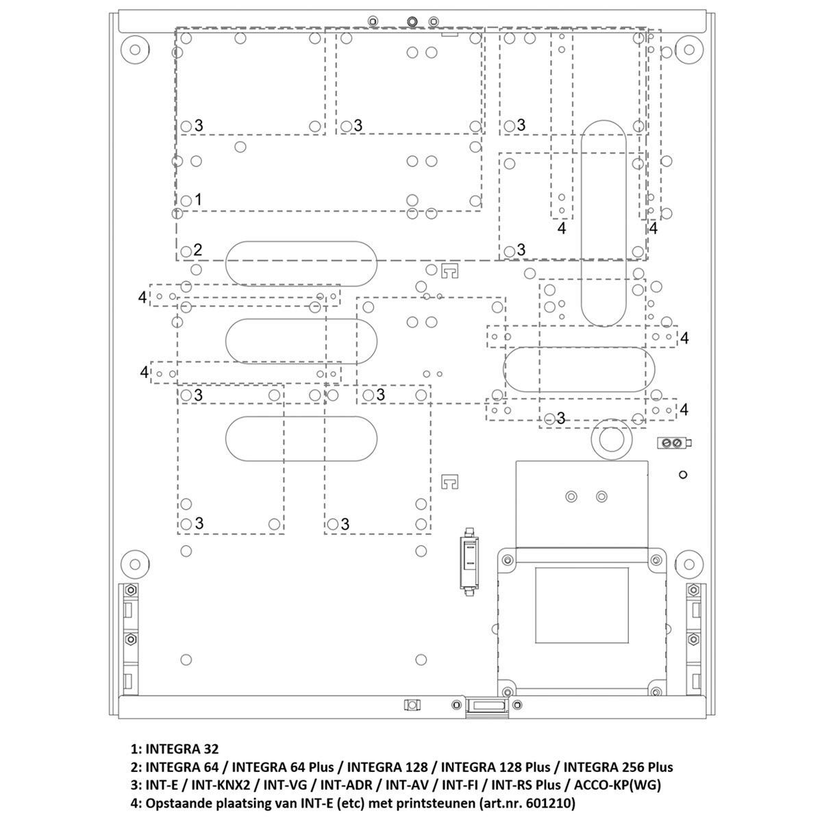
- t.b.v. INTEGRA 64 en 128
- inclusief AWT5161820 (TRZ50/16/18/20) transformator 50VA
- geschikt voor 17Ah voeding
- uitgangsvoltage 20VAC/2,5A - 18VAC/3A
- afmetingen 340 x 400 x 110 mm
versie
update
type
grootte















